Kontorpavillion – inspiration
Forslag 5
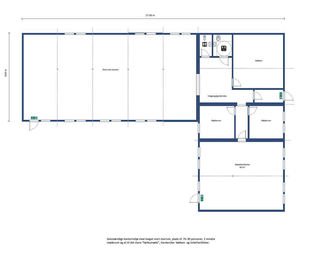
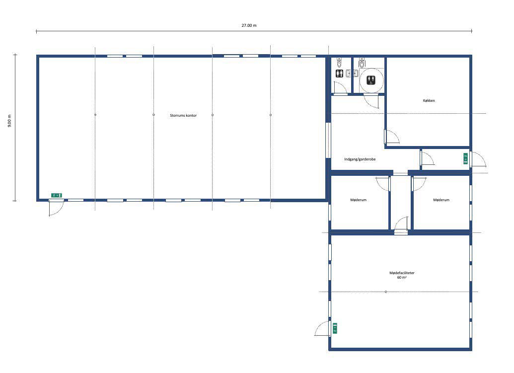
Indrettet som “Sundhedsklinik / Health Care” med træningssal, flere behandlingsrum for massage, fysioterapi, kiropraktor etc., venteområde, personalerum, garderobe- og toiletfaciliteter, alternativt som kontormiljø med storrumskontor, flere mindre rum for 2-3 personer, mødelokaler og fællesareal. Garderobe, toilet- og køkkenfaciliteter.






